2 tarasy! 2 poziomy! Dwustronna ekspozycja! Garaż!

lokalizacja: Kraków, Chabrowa

1 629 000,00 PLN

13 462,81 PLN

Opis nieruchomości

Wyjątkowe dwupoziomowe mieszkanie z 2 tarasami oraz garażem w świetnej lokalizacji z rozwinętą infrastrukturą na kameralnym osiedlu! Idealne dla rodziny ceniącej ciszę, spokój oraz blizkość centrum!

ZADZWOŃ I UMÓW SIĘ NA SPOTKANIE!

Oddanie w I kwartale 2026 roku.

OPIS MIESZKANIA

Całość to:
- 60m2 tarasu na górnym piętrze, dostępnym z dwóch sypialni (zewnętrzna sauna, basen dla dzieci itp)
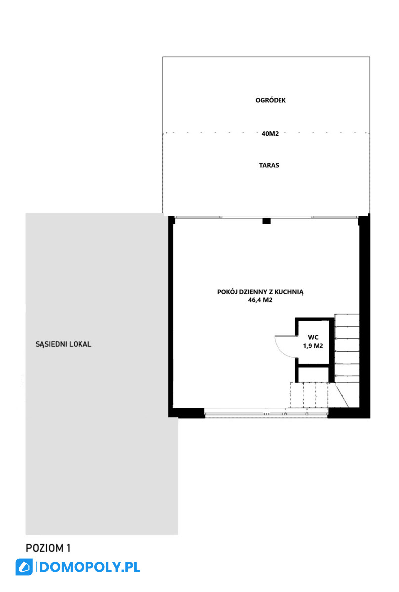
- 40m2 tarasu z wielkimi przeszkleniami na dolnym piętrze idealne na gazowego grilla, zimowy ogród czy strefę do wypoczynku lub spotkań ze znajomymi)
- 20m2 osobnego, zamykanego garażu (+ drugie miejsce zewnętrze dodatkowo płatne)
- 121m2 powierzchni lokalu w stanie deweloperskim składającego się z:

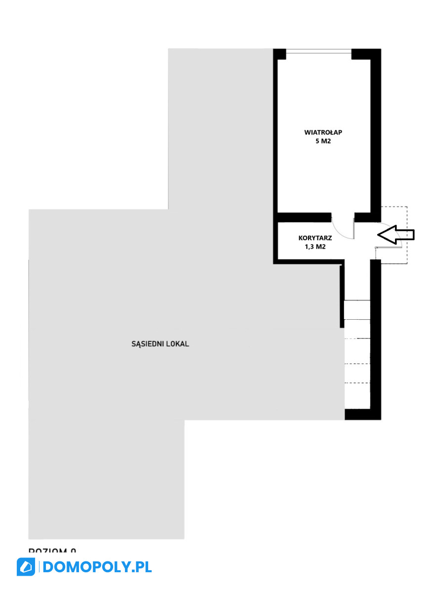
PARTERU :
1. Wiatrołap - 5m2
2. Korytarz - 1,3 m2

1 PIĘTRO :
3.Pokój dzienny z kuchnią - 46,4 m2
4. Łazienka - 1,9 m2

2 PIĘTRO :
5. Korytarz - 7,2 m2
6. Pokój - 11,7 m2
7. Pokój - 9,5 m2 
8. Pokój - 11,9 m2
9. Pokój - 12 m2
10. Pomieszczenie gospodarcze - 4,9 m2
11. Łazienka - 4,8 m2
12. Łazienka - 4,1 m2

Z dodatkowych atutów : pompa ciepła, instalacja fotowoltaiczna, rekuperacja, klimatyzacja.

LOKALIZACJA I KOMUNIKACJA

100m - przystanek autobusowy
1km - przystanek tramwajowy
2km - galeria Bronowice
Blisko Paczkomat
Bezpośrednie sąsiedztwo terenów zielonych Chabrowego Traktu i Parku Rzecznego Tonie
W blizkiej odległości są wszystkie niezbędnę punkty handlowo-usługowe, a także placówki edukacyjne, kino, teatr, kluby sportowe oraz bliskość ośrodków zdrowotnych.

DLACZEGO MY?

Jesteśmy Liderem Jakości PRO według Otodom!
Pomożemy Ci przebrnąć przez cały proces zakupu.
KLIENT NIE PLACI PROWIZJI!
Pomagamy Ci w wyborze najlepszego mieszkania!
Posiadamy dostęp do dużej bazy ofert nieruchomości na terenie Krakowa i okolic.
NEGOCJUJEMY INDYWIDUALNE RABATY dla Klientów.

FINANSE

Cena za mieszkanie to 1 629 000 PLN wraz z garażem 
+ miejsce postojowe zewnętrzne w cenie 50 000 PLN obligatoryjne 

ZADZWOŃ I UMÓW SIĘ NA PREZENTACJĘ!
TO NIC NIE KOSZTUJE!

Zapraszam serdecznie do kontaktu, odbieram również wieczorami oraz w miarę możliwości w weekendy.

Marta Petlovana

*Zdjęcie jest wizualizacją, tak może wyglądać Twój dom!

Powyższa oferta ma charakter informacyjny i nie stanowi oferty handlowej w rozumieniu art. 66 1 Kodeksu Cywilnego

Adres strony www: https:// NULL

Kontakt do opiekuna:

DOMOPOLY.PL

Marta Petlovana
Nieprawidłowy adres E-mail
Mapa

Strona korzysta z plików cookie w celu realizacji usług zgodnie z Polityką prywatności. Możesz określić warunki przechowywania lub dostępu do cookie w Twojej przeglądarce.